〈はじめに〉
工場において火災が発生した際、従事される方々の避難安全確保のため、建物の倒壊・
火災を抑制する耐火性能や、煙・有毒ガスが避難階段に廻りこまない様にするなど遮炎性能は重要になります。倒壊や火災を抑制するために主要構造部(壁・柱・床・梁・屋根・階段)を不燃化する事で耐火性能はあがります。また、面積区画1500㎡(工場の場合)以内で区画する事や竪穴区画する事で煙・有毒ガス対策としての遮炎性能はあがります。
さらに、避難経路の2方向避難は最も重要だと考えます。
また、食品工場やプラント工場など将来のレイアウト変更を見据えると、避難階段までの歩行距離に多少余裕を持たせる設計が必要であると考えられます。
今回、防火区画の壁や出入口の設計施工事例を確認する事で、避難安全性を確保できるだろうと考え掲載いたしました。以下ご参照のほどよろしくお願いいたします。
防火区画 貫通部処理の参考図

目次(防火区画設計・施工の大事なところ)
- 工場の特殊建築物について
- 準耐火建築物 ロ-2 について
- 防火区画 面区画(1時間耐火構造)・壁や天井の納まり
- 防火区画 面区画 壁仕様:1時間耐火構造
- 防火区画 面区画 開口部:防火シャッター(特定防火設備)
- 防火区画 面区画 開口部:製品用防火ダンパー(特定防火設備)
- 防火区画 面区画 出入口:スムードドア(特定防火設備)
- 防火区画 面区画 出入口:スチールドア(特定防火設備)
- 竪穴区画 エレベーター:防煙スクリーン(特定防火設備)
- 防火区画 貫通部処理:ダクト ファイヤーダンパー 120℃(特定防火設備)
- 防火区画 貫通部処理の参考図
1. 工場の特殊建築物について
・工場 ~ 建築基準法第2条ニの特殊建築物に当てはまる
・工場 ~ 別表第1の特殊建築物には 当てはまらない
(別表第1の特殊建築物は、不特定多数の人が利用する施設や病院などの施設は、防火規定や避難規定が厳しくなる)※耐火建築物・廊下の幅・直通階段・排煙設備など
2. 準耐火建築物 ロ-2 について
・一般的な工場において~準耐火建築物ロ-2(不燃構造のロ準耐)で設計する事が多い ※鉄骨造で主要構造部が不燃材料で可能(状況により柱・梁 耐火被覆) 床はコンクリートで問題無し
将来増築予定を見越し、外壁延焼のおそれのある部分の配慮は必要(防火構造)(ALC版100など)
・工場の品質管理からみても不燃材料は望ましい
3. 防火区画 面区画(1時間耐火構造)・壁や天井の納まり
・工場の面積区画~1500㎡以内ごとに区画
スプリンクラー設備を設けた場合3000㎡以内ごとに区画可能
外壁防火区画 スパンドレル(防火区画に接する外壁の構造部分)※開口部同士の距離が90cm以上必要
用途上やむを得ない理由がある場合防火区画の免除もあり
・工場を避難安全検証法で設計する場合~
計算ルートB1・B2の【階避難安全検証法】で計算
・工場の竪穴区画~壁:耐火構造とするか防火構造とするか状況により
出入口:特定防火設備とするか防火設備とするか状況により
出入口:いずれも【遮炎性能必要】
4. 防火区画 面区画 壁仕様:1時間耐火構造

・防火区画:壁1時間耐火構造~
1.タイガーボードタイプZ 12.5㎜2枚 内外共 四面処理ロックフェルト + Uタイト
2.PC版の場合…10cmか12cm程度が一般的
3.ALCの場合…10cmか12cm程度が一般的
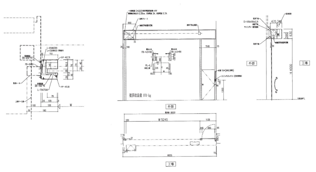
5. 防火区画 面区画 開口部:防火シャッター(特定防火設備)

・スラッド厚さ1.6㎜
・自火報連動 必要
・障害物検知装置 必要
6. 防火区画 面区画 開口部:製品用防火ダンパー(特定防火設備)

・人が出入する事は無いので障害物検知装置は無し
・防火区画を貫通する製造ライン 改修事例
・製品用防火ダンパー(特定防火設備)仕様
7. 防火区画 面区画 出入口:スムードドア(特定防火設備)

・自閉式 特定防火設備
・気密が必要な場合 セミエアタイト仕様
・建具内外の厚み合計で1.5㎜以上 特定防火設備実現
・建具軽量化
8. 防火区画 面区画 出入口:スチールドア(特定防火設備)

・自閉式 特定防火設備
・気密が必要な場合 セミエアタイト仕様
9. 竪穴区画 エレベーター:防煙スクリーン(特定防火設備)
・竪穴区画の遮炎性能 2002年6月施工令改正により遡及 必要
・耐火クロスの防煙スクリーン(特定防火設備)
・障害物検知装置 必要
10. 防火区画 貫通部処理:ダクト ファイヤーダンパー 120℃(特定防火設備)

・防火区画を貫通する場合 … ファイヤーダンパー(FD)を取付ける(特定防火設備)
・生産設備によりダクト内温度が高い場合 … 72℃→120℃の温度フューズに交換
例:ダクト内温度50℃など
・竪穴区画・異種用途区画を貫通する場合 … スモークダンパー(SD)を設置し、
煙感器と連動させる
11. 防火区画 貫通部処理の参考図

・防火区画を貫通する給排水管~防火区画の壁・床から1m位以内の配管は不燃材料等とし、貫通穴の隙間はモルタル等の不燃材で埋める場合により~硬質塩化ビニル管等の防火区画貫通部の取り扱い
平12建告1422号によりVP75・VP100等は可能
VU管はNG
・防火区画を貫通する換気ダクト類~換気・暖房・冷房等の風道が防火区画を貫通する場合は、防火ダンパーをその近接する部分に設ける
鉄板厚さ1.5㎜以上とし、貫通穴の隙間はモルタル等の不燃材で埋める
例:1.6㎜鉄板温度フューズ72℃or120℃等
・防火区画を貫通する電気関係~認定品多数
・令8区画について~防火対象物が開口部のない耐火構造の床又は壁で区画されているときは、その区画された部分は、この節の規定の適用については、それぞれ別の防火対象物とみなす。(2時間耐火構造・区画の突き出し50cm以上・開口部がある場合開口部間の距離90cm以上必要で窓は防火設備・外壁または屋根が令8区画壁を含む3.6m以上に渡り耐火構造)
【補足】
特定防火設備とは、1時間遮炎性能
防火設備とは、20分遮炎性能
【ご相談承ります】
これから工場建設予定の法人様はもちろんのこと、修繕・改修でお困りの方に対し少しでもお役に立てれば幸いです。どうぞお気軽にお問い合わせください。
電話番号 028-670-5290

